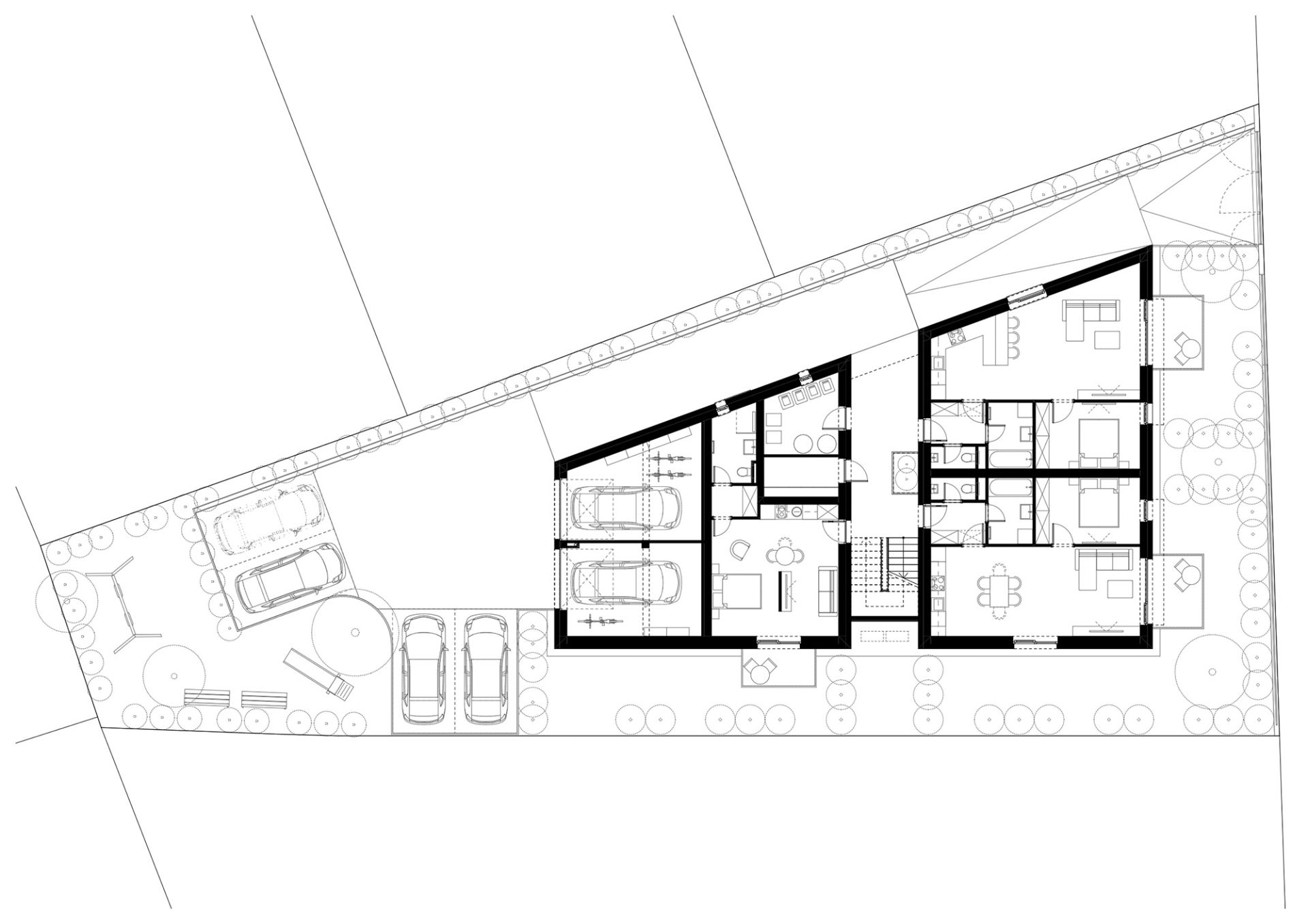
Apartment house
| Project | Apartment house - 5 flats |
| Location | Veszprém |
| Category | residental |
| Planning | 2023 - 2024 |
| Status | under construction |
| Completed | 2024 |
| Client | DoNo Tech Professional Ltd |
| Photo / Images | Gaschler Architectural Office |
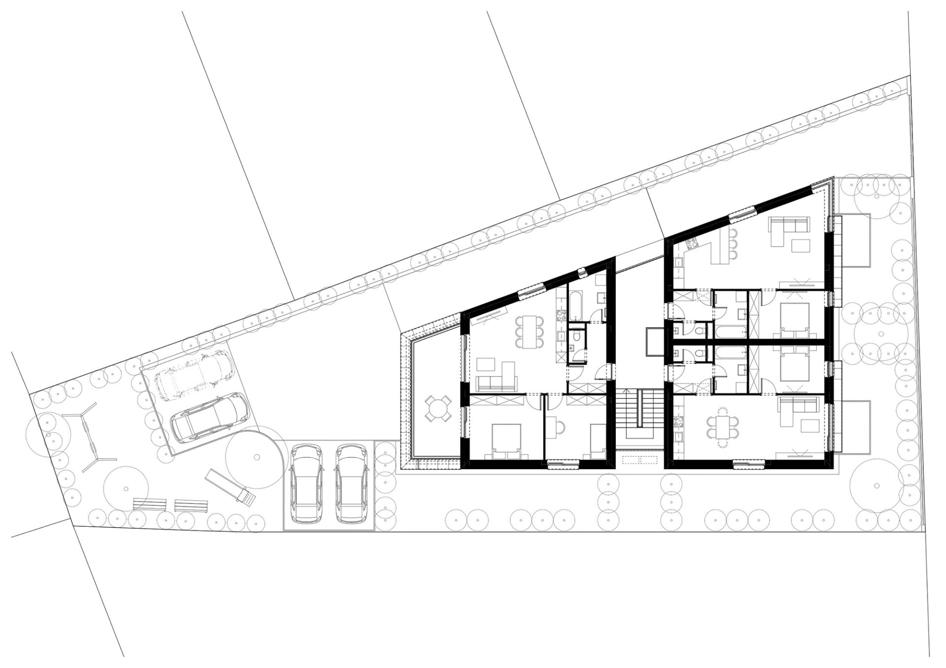
| Project | Apartment house - 5 flats |
| Location | Veszprém |
| Category | residental |
| Planning | 2023 - 2024 |
| Status | under construction |
| Completed | 2024 |
| Client | DoNo Tech Professional Ltd |
| Photo / Images | Gaschler Architectural Office |