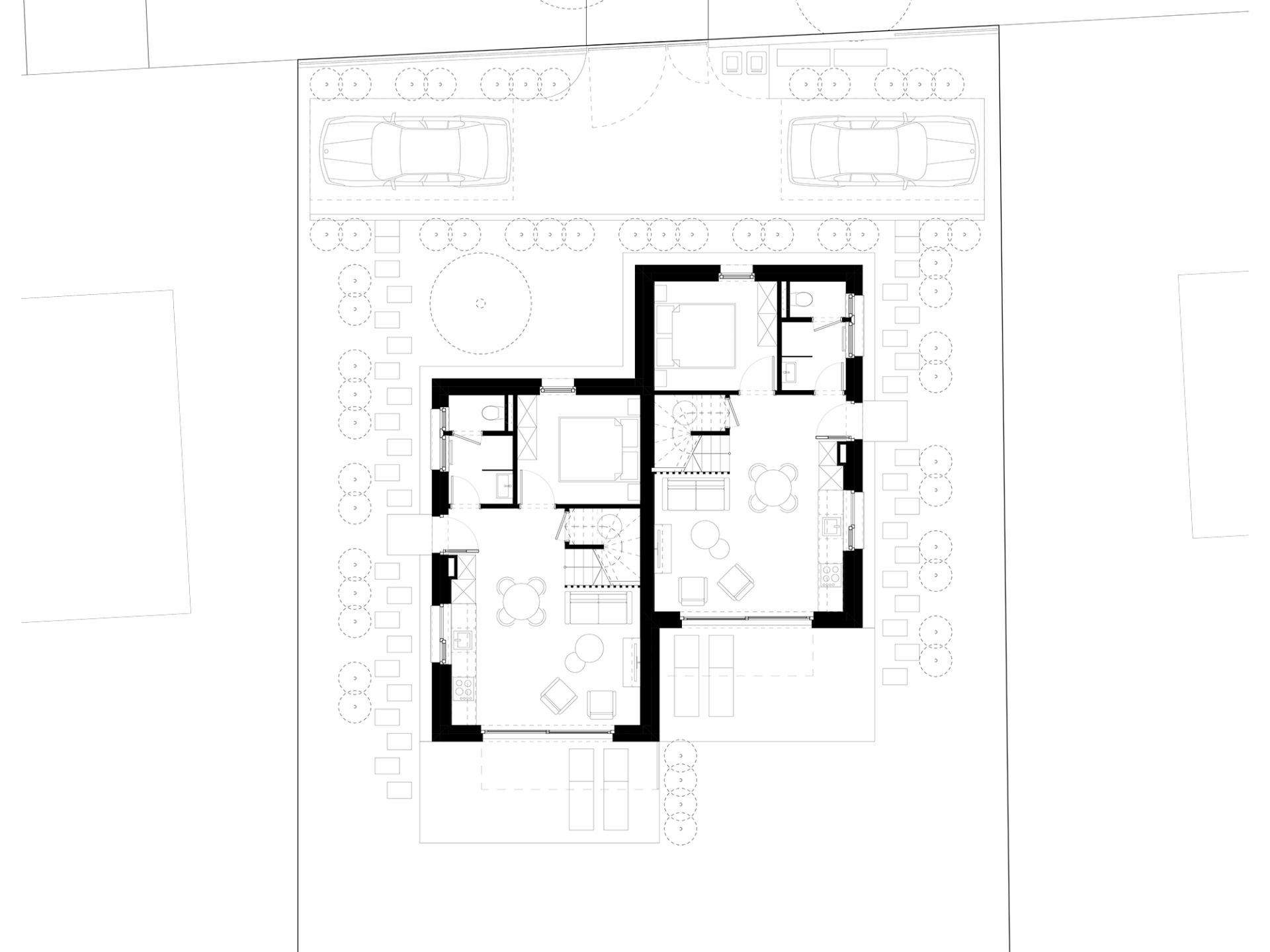
ÉT ház
| Hely | Alsóőrs |
| Kategória | egyéb |
| Funkció | nyaraló épület |
| Tervezés | 2024 |
| Státusz | engedélyezési terv |
| Megvalósulás | - |
| Volumen | 110 m2 |
| Megbízó | Épi-Trió Kft. |
| Fotó / Képek | Gaschler Építésziroda |
| Hely | Alsóőrs |
| Kategória | egyéb |
| Funkció | nyaraló épület |
| Tervezés | 2024 |
| Státusz | engedélyezési terv |
| Megvalósulás | - |
| Volumen | 110 m2 |
| Megbízó | Épi-Trió Kft. |
| Fotó / Képek | Gaschler Építésziroda |